Objekt-Nr. 2422 – Büro/Praxis zum Kauf in AugsburgVielfältig nutzbares Büro mit möblierter Teeküche und ca. 62 m² Nutzfl. im Zentrum von Augsburg

Objektdaten & Ausstatung

  • Kaufpreis 275.000 €
  • Adresse 86150 Augsburg
  • Nutzfläche ca. 61,90 m²
  • Gesamtfläche ca. 61,90 m²
  • Baujahr 1913
  • Befeuerungsart Fernwärme
  • Boden Parkett
  • Denkmalschutz
  • Fahrstuhl Personen
  • Heizungsart Fernwärmeheizung
  • Küche Einbauküche
  • Modernisierungen 2003
  • Provisionspflichtig
  • Unterkellert
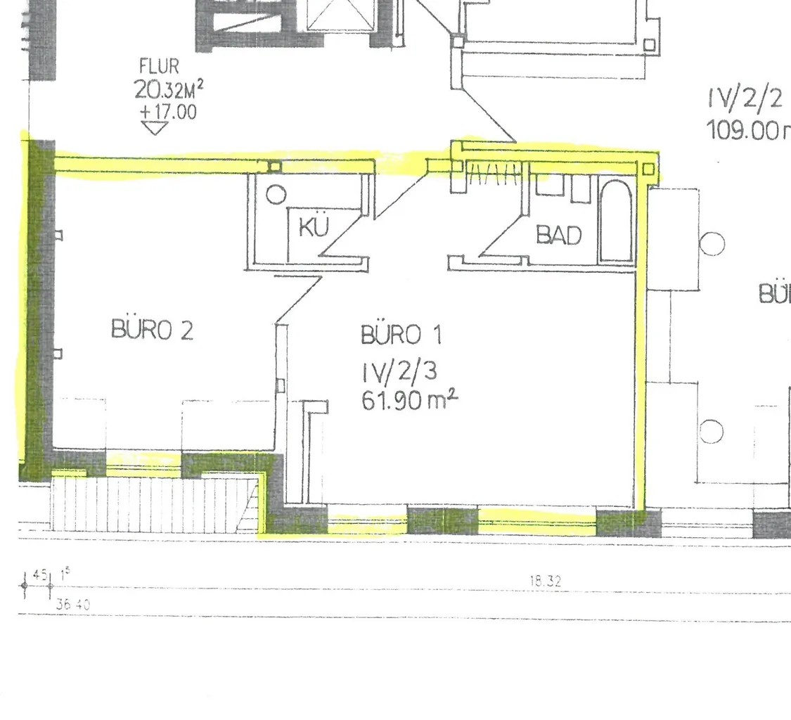
Es handelt sich um Büroflächen mit ca. 61,90 m² Gesamtnutzfläche in einem ca. 1913 erbauten Bürogebäude; die Einheit befindet sich im 4. OG (mit Lift). Die Flächen sind ideal geeignet für z.B. Dienstleistungsunternehmen, kleine Praxen, künstlerische und kreative Unternehmen sowie Freiberufler. Die Räume werden mit Fernwärme beheizt, die Wärmeverteilung erfolgt über Wandheizkörper. Bei den Böden handelt es sich um Parkettbodenbelag und Bodenfliesen. Das innenliegende Badezimmer mit Badewanne, Waschbecken und WC ist modern und hell gefliest und zeitgemäß ausgestattet. Besonders hervorzuheben ist die helle Raumgestaltung, der unverbaute Ausblick Richtung Westen und der barrierefreie Zugang zu den Büroräumen. Zur Einheit gehörend und im Kaufpreis enthalten ist ein Kellerabteil mit Licht und Strom. Auf Wunsch kann ein Carport für 25.000 € optional erworben werden. Ein Bezug ist nach Absprache möglich.
Auch die Nutzung als Wohnung ist möglich.
Das Objekt befindet sich in einem Bürogebäude. Der vorliegende Energieausweis für Nichtwohngebäude ist bis 23.02.2034 gültig und gibt einen Primärenergiebedarf von 125,8 kWh/(m²a) an. Der Endenergiebedarf Wärme beträgt 214,5 kWh/(m²a), der Endenergiebedarf Strom beträgt 40,1 kWh/(m²a). Eine Energieeffizienzklasse wird nicht angegeben.

Raumangebot:
Büro 1, Büro 2 mit Einbauschrank und dahinter liegendem Abstellbereich, aktuell abgetrenntes Büro 3, Teeküche ohne Fenster, innenliegendes Bad;

Nebenkostenvorauszahlung monatlich 275,00 € inkl. Heizkostenvorauszahlung 70,00 €
Die Büroräume befinden sich in zentraler Lage der Augsburger Innenstadt, in der Hermanstraße. Die Fußgängerzone wie auch der Rathausplatz sind unweit entfernt. Hervorragende Infrastruktur im direkten Umfeld. Sehr gute Anbindung an öffentliche Verkehrsmittel (Bus und Straßenbahn) durch den nahen Königsplatz (ca. 230 m entfernt) in sämtliche Richtungen; der Hauptbahnhof Augsburg ist in wenigen Minuten sehr gut zu Fuß erreichbar.
Baujahr: 1913
Energiekennwert Wärme: 214,5 kWh/(m²*a)
Energiekennwert Strom: 40,1 kWh/(m²*a)
Befeuerung/Energieträger: Fernwärme
Energieausweistyp: Bedarfsausweis
Heizungsart: Fernwärme

Angaben zu den Energieausweisen:
Energieausweis für Nichtwohngebäude:
Es liegt ein Energiebedarfsausweis vor.
Dieser wurde am 23.02.2024 erstellt und ist bis 23.02.2034 gültig.
Endenergiebedarf Wärme: 214,5 kWh/(m²a)
Endenergiebedarf Strom: 40,1 kWh/(m²a)
wesentlicher Energieträger: Fernwärme SWA
Baujahr des Objektes lt. Energieausweis: 1913, saniert 2003

Exklusiv-Vermittlung im Alleinauftrag durch
S. Schreck Immobilien u. Wohnbau GmbH

Schaezlerstraße 9, 86150 Augsburg
Telefon: 0821-514775
www.schreck-immobilien.de
E-Mail: info@schreck-immobilien.de

Zahlreiche weitere Angebote im Grossraum Augsburg
finden Sie bei www.schreck-immobilien.de

Wir weisen darauf hin, dass wir mit dem Vertragspartner
eine Provision in gleicher Höhe vereinbart haben.
  • Baujahr 1913
  • Befeuerungsart Fernwärme
  • Boden Parkett
  • Denkmalschutz
  • Fahrstuhl Personen
  • Heizungsart Fernwärmeheizung
  • Küche Einbauküche
  • Modernisierungen 2003
  • Provisionspflichtig
  • Unterkellert

Käuferprovision

3,57%


Energiebedarfsausweis

Endenergiebedarf-Strom 40,10 kWh/(m²*a)
Endenergiebedarf-Wärme 214,50 kWh/(m²*a)
Befeuerungsart Fernwärme
Heizungsart Fernwärmeheizung
Baujahr (Energieausweis) 2003
Gültig bis 23.02.2034
Energieausweis Ausstellungsdatum 2024-02-23

Erfolg! Vielen Dank für Ihre Bewertung.

Fehler! Bitte füllen Sie alle Felder aus.