Objekt-Nr. 2435 – Wohnung zur Miete in AugsburgStadtlage mit Lechblick: 3-ZKB Wohnung mit ca. 82 m² Wfl., Balkon und TG

Objektdaten & Ausstatung

  • Miete zzgl. NK 1.250 €
  • Nebenkosten 200 €
  • Miete inkl. NK 1.450 €
  • Kaution 3.525 €
  • Adresse 86169 Augsburg
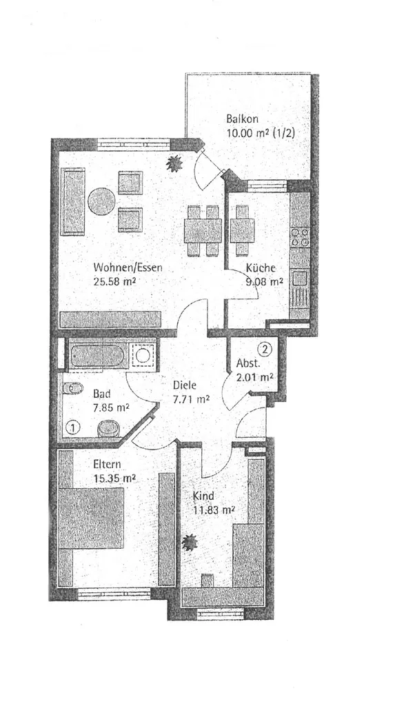
  • Wohnfläche ca. 82 m²
  • Zimmer 3
  • Anzahl Badezimmer 1
  • Anzahl Schlafzimmer 2
  • Anzahl Stellplätze 1
  • Anzahl Zimmer 3
  • Baujahr 2001
  • Befeuerungsart Gas
  • Fahrstuhl Personen
  • Haustiere erlaubt
  • Heizungsart Zentralheizung
  • Küche Einbauküche
Diese sehr schöne, helle 3-ZKB Wohnung mit Tiefgaragenstellplatz befindet sich im 2. OG einer gepflegten Wohnanlage, welche ca. 2001 erbaut wurde. Besonders hervorzuheben ist der ca. 10 m² (Grundfläche) große West-Balkon, vom Wohnzimmer aus begehbar, mit direktem Blick ins Grüne und auf den Lech. Die Wohnung ist mit Parkettböden und Bodenfliesen ausgestattet; das hell geflieste Badezimmer (innenliegend) verfügt über Badewanne, Dusche, Waschbecken, WC und Waschmaschinenanschluss. Im Mietpreis enthalten sind eine Einbauküche, ein Kellerabteil mit Licht und Stromanschluss sowie ein Tiefgaragenstellplatz. Die Wohnung kann ab 01.01.2026 bezogen werden.

Raumangebot:
Wohn-/Esszimmer, Elternschlafzimmer, Kinderzimmer, Küche, innenliegendes Badezimmer mit Badewanne, Dusche, Waschbecken, WC und Waschmaschinenanschluss, Diele, Abstellraum, West-Balkon;

Nebenkostenvorauszahlung ca. 200,00 € mtl. inkl. Heizkostenvorauszahlung in Höhe von ca. 100,00 €
Wohnen Sie ruhig und citynah mit Blick auf den nahen Lech in Augsburg-Lechhausen. Einrichtungen zur Deckung des täglichen Bedarfs wie Einkaufsmöglichkeiten (Rewe Markt, Bäckerei etc.), Kindergärten, Schulen, Apotheken und Ärzte befinden sich in der näheren Umgebung und sind gut zu erreichen. Gute Anbindung durch öffentliche Verkehrsmittel zur Innenstadt Augsburg (Haltestelle Stadtbus Linie 22 ca. 5 Gehminuten). Für Pendler ist die Anbindung zur A8 München-Stuttgart zudem interessant. Der Lech, die Lechauen, der Grieslepark sowie mehrere Sport- und Spielplätze erhöhen den Freizeitwert.
Baujahr: 2001
Energieeffizienzklasse: C
Heizungsart: Zentralheizung
Befeuerung/Energieträger: Gas
Energieausweistyp: Verbrauchsausweis
Energiekennwert: 81 kWh/(m²*a)

************************************************************************
Unser Büro befindet sich bis 06.01.2026 im Betriebsurlaub,
gerne sind wir ab 07.01.2026 wieder für Sie da!

Wir wünschen Ihnen frohe Weihnachten
und ein gesundes neues Jahr 2026!

Ihr Team von S. Schreck Immobilien u. Wohnbau GmbH
************************************************************************

Damit wir Sie zu einer Besichtigung einladen können, benötigen wir vorab von Ihnen:
- Mieterselbstauskunft (PDF-Formular, abrufbar online unter "Dokumente")

Sollten Sie sich nach Besichtigung des Objektes zur Anmietung entscheiden, benötigen wir zur Bonitätsprüfung bitte folgende Unterlagen:
- Gehaltsnachweis der letzten drei Monate
- Arbeitgeberbescheinigung über ein ungekündigtes Arbeitsverhältnis
- aktuelle Schufa-Auskunft (www.schufa.de)

Vielen Dank.

Schaezlerstraße 9, 86150 Augsburg
Telefon: 0821-514775
www.schreck-immobilien.de
E-Mail: info@schreck-immobilien.de
  • Anzahl Badezimmer 1
  • Anzahl Schlafzimmer 2
  • Anzahl Stellplätze 1
  • Anzahl Zimmer 3
  • Baujahr 2001
  • Befeuerungsart Gas
  • Fahrstuhl Personen
  • Haustiere erlaubt
  • Heizungsart Zentralheizung
  • Küche Einbauküche
  • Provisionspflichtig
  • Tiefgaragenstellplätze 1
  • Unterkellert
  • verfügbar ab frei ab 01.01.2026

Energieverbrauchsausweis

Endenergieverbrauch 81 kWh/(m²*a)
Befeuerungsart Gas
Heizungsart Zentralheizung
Energieeffizienzklasse C
Gültig bis 20.03.2028
Energieausweis Ausstellungsdatum 2018-03-20

Erfolg! Vielen Dank für Ihre Bewertung.

Fehler! Bitte füllen Sie alle Felder aus.