Objekt-Nr. 2431 – Wohnung zur Miete in AugsburgNur für Singles oder Paare: 100 m² Wohnung mit Loggia in der Annastraße

Objektdaten & Ausstatung

  • Miete zzgl. NK 1.250 €
  • Nebenkosten 370 €
  • Miete inkl. NK 1.620 €
  • Kaution 3.750 €
  • Adresse 86150 Augsburg
  • Wohnfläche ca. 100 m²
  • Zimmer 3
  • Anzahl Badezimmer 1
  • Anzahl Schlafzimmer 2
  • Anzahl Zimmer 3
  • Baujahr 1960
  • Befeuerungsart Fernwärme
  • Fahrstuhl Personen
  • Haustiere erlaubt
  • Heizungsart Zentralheizung
  • Küche Einbauküche
  • Modernisierungen 2007
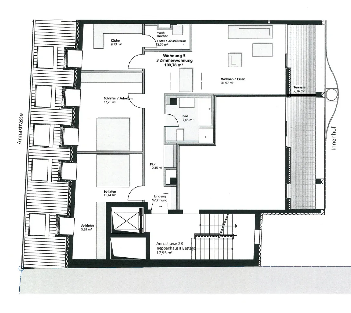
Diese Top-3-ZKB-Wohnung mit Loggia verfügt über ca. 100 m² Wohnfläche und befindet sich im 4. OG (mit Lift) eines ansprechenden Wohn- und Geschäftshauses, welches ursprünglich 1960 erbaut wurde. Die Wohnungen wurden im Rahmen einer grundlegenden Sanierung im Jahr 2007 neu errichtet. Besonders hervorzuheben ist der großzügige Wohn-/Essbereich mit Zugang zur Loggia. Die Wohnung ist hochwertig mit Parkettböden und Fußbodenheizung in allen Räumen ausgestattet. Das innenliegende, hell geflieste und moderne Badezimmer verfügt über Dusche, Badewanne, Waschbecken und WC. Die Fenster zur Annastraße erhalten neue 3-fach Isolierverglasung. Zur Wohnung gehörend und im Mietpreis enthalten ist ein Keller mit Licht und Strom. Die vorhandene Einbauküche mit Elektrogeräten sollte vom Vormieter abgelöst werden. Die Wohnung ist frei ab 15.10.2025.

Besichtigungstermine können frühestens am 29.09.2025 stattfinden.

Raumangebot:
Wohnen/Essen (ca. 32 m²) mit Zugang zur Loggia, Küche, Schlafen oder Arbeiten, Schlafen mit Ankleide, innenliegendes Badezimmer mit Badewanne, Dusche, Waschbecken und WC, Abstellraum mit Waschmaschinenanschluss, Flur;

Nebenkostenvorauszahlung 370,00 € mtl. inkl. Heizkostenvorauszahlung in Höhe von 150,00 €
Wohnen Sie direkt im Herzen der Innenstadt, wenige Meter vom Rathausplatz entfernt. Hervorragende Infrastruktur mit Einrichtungen zur Deckung des täglichen Bedarfs wie z.B. Einkaufsmöglichkeiten, Kindergarten, Schulen und Gymnasium im direkten Umfeld. Den Stadtmarkt erreichen Sie direkt gegenüberliegend. Sehr gute Anbindung durch öffentliche Verkehrsmittel, Straßenbahn- bzw. Bushaltestellen befinden sich praktisch um die Ecke am Rathausplatz, Moritzplatz bzw. Königsplatz. Der Hauptbahnhof Augsburg ist fußläufig in kurzer Zeit erreichbar.
Baujahr: 1960
Heizungsart: Zentralheizung
Befeuerung/Energieträger: Fernwärme
Energieausweistyp: Verbrauchsausweis
Energieeffizienzklasse: B
Energiekennwert: 55,7 kWh/(m²*a)

Damit wir Sie zu einer Besichtigung einladen können, benötigen wir vorab von Ihnen:
- Mieterselbstauskunft (PDF-Formular, abrufbar online unter "Dokumente")

Sollten Sie sich nach Besichtigung des Objektes zur Anmietung entscheiden, benötigen wir zur Bonitätsprüfung bitte folgende Unterlagen:
- Gehaltsnachweis der letzten drei Monate
- Arbeitgeberbescheinigung über ein ungekündigtes Arbeitsverhältnis
- aktuelle Schufa-Auskunft (www.schufa.de)

Vielen Dank.

Schaezlerstraße 9, 86150 Augsburg
Telefon: 0821-514775
www.schreck-immobilien.de
E-Mail: info@schreck-immobilien.de
  • Anzahl Badezimmer 1
  • Anzahl Schlafzimmer 2
  • Anzahl Zimmer 3
  • Baujahr 1960
  • Befeuerungsart Fernwärme
  • Fahrstuhl Personen
  • Haustiere erlaubt
  • Heizungsart Zentralheizung
  • Küche Einbauküche
  • Modernisierungen 2007
  • Provisionspflichtig
  • Unterkellert
  • verfügbar ab frei ab 15.10.2025
  • Zustand gepflegt

Energieverbrauchsausweis

Endenergieverbrauch 55,70 kWh/(m²*a)
Befeuerungsart Fernwärme
Heizungsart Zentralheizung
Baujahr (Energieausweis) 2007
Energieeffizienzklasse B
Gültig bis 20.06.2028
Energieausweis Ausstellungsdatum 2018-06-21

Erfolg! Vielen Dank für Ihre Bewertung.

Fehler! Bitte füllen Sie alle Felder aus.